290 mq
5
2
Garage/Posto Auto
Giardino privato
Arredato
Autonomo
F

Descrizione

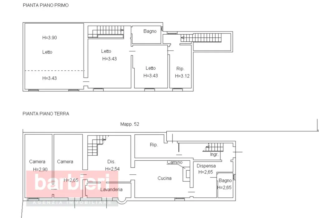
Rif. BRB-25 - Vendiamo a San Pietro in Vincoli, in pieno centro cittadino, villa bifamiliare di ampie metrature. L'immobile, disposto su due livelli, si compone di ingresso, soggiorno, cucina, due camere, bagno e zona servizi/lavanderia al piano terra; salendo la scala interna si accede al primo piano dove sono presenti tre camere da letto matrimoniali, un ripostiglio e un ulteriore bagno. Completano l'offerta due ampi locali in corpo staccato adibiti a magazzino di circa 195 mq. L'immobile necessita di alcuni lavori di ristrutturazione interna. RIF. 25

Altre caratteristiche

Stato Immobile
In discrete condizioni
Vani
8
Tipo di cucina
Abitabile
Balconi
1
Terrazze / Logge
1
Piano
Su più livelli
Piani totali della palazzina
2
Tipologia Immobile
Villa abbinata
Categoria Immobile
Case e Appartamenti
Contatta Agenzia
Proposto da: AGENZIA BARBIERI CERVIA

Quotazioni immobiliari per Via Senna 20 - Ravenna