700 mq
In attesa di certificazione

Descrizione

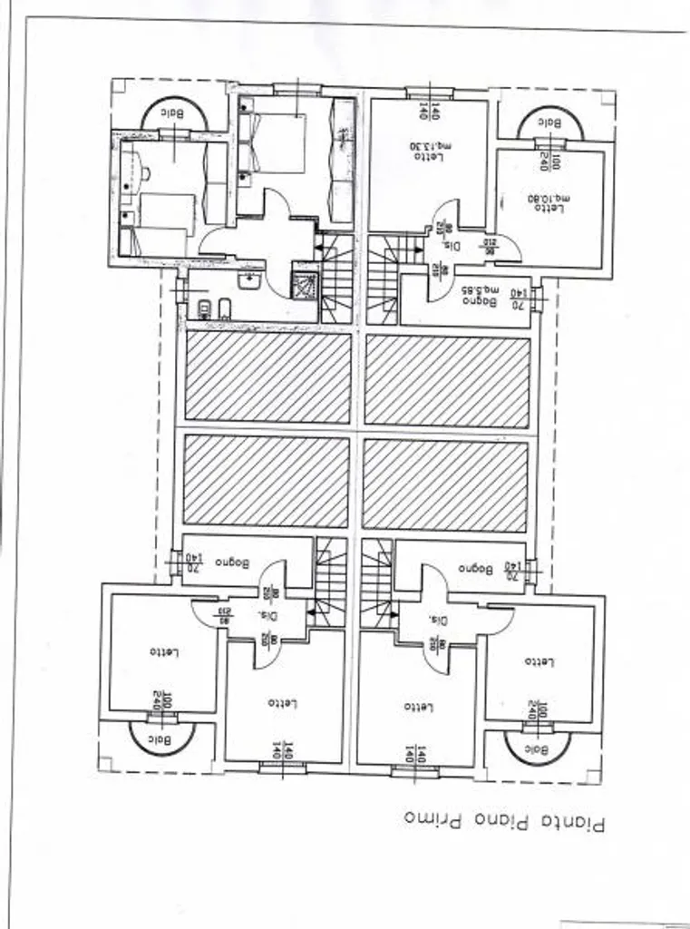
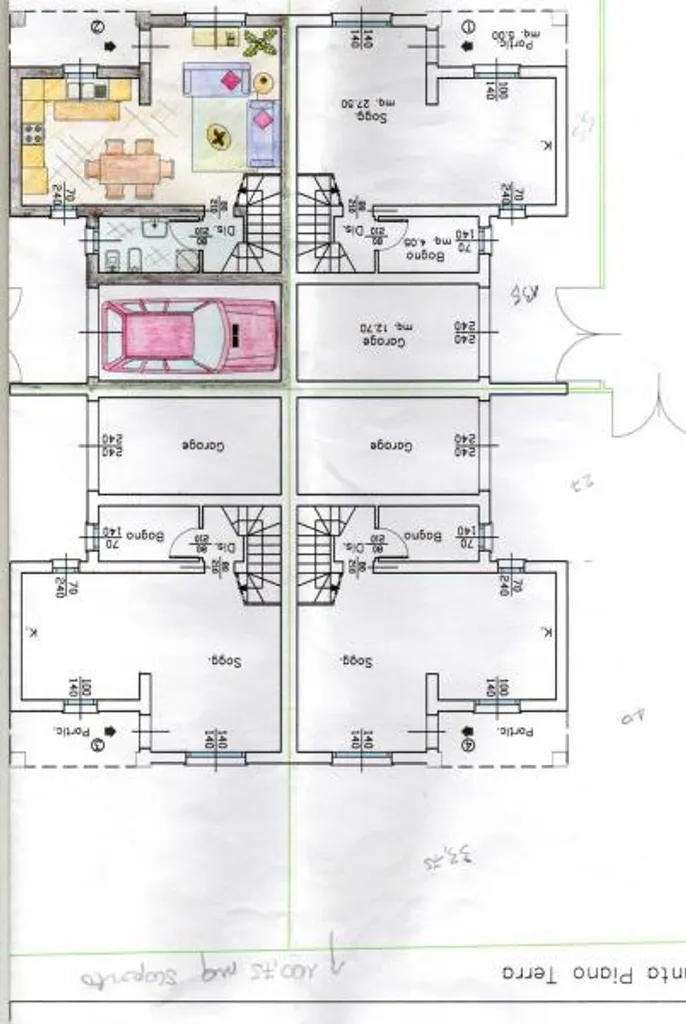
Rif. 363 - TERRENO EDIFICABILE a Lagosanto adiacente ai lidi di Comacchio, Ferrara. In zona residenziale, Ultimo lotto di circa 700 mq già edificato fino al primo solaio. Possibilità di realizzare una quadrifamiliare con scoperti esclusivi. Progetto approvato, pratica edilizia completa e metà oneri assolti. Indagini geologiche già eseguite. Attualmente eseguita fondazione e paltea in calcestruzzo armato, muratura in elevazione in porothon e solaio gettato. Il lotto di terreno, offre la possibilità di raggiungere i lidi di comacchio in pochissimi minuti. E' l'ultimo di una zona resideziale completamente edificata e servita, in quanto vicinissima al centro del paese. Comodo al nuovo centro ospedaliero " Valle Oppio" e alla città di Comacchio. Potete contattarci senza impegno per maggiori informazioni o per fissare un appuntamento per visionare questo TERRENO EDIFICABILE a Lagosanto adiacente ai lidi di Comacchio, Ferrara. Cod 363.€. 85.000

Altre caratteristiche

Ultimo piano
Tipologia Immobile
Terreno Edificabile
Categoria Immobile
Case e Appartamenti
Contatta Agenzia
Proposto da: Progetto Casa Ferrara