160 mq
4
1
Giardino privato
Autonomo
In attesa di certificazione

Descrizione

Rif. DR1C10374 -

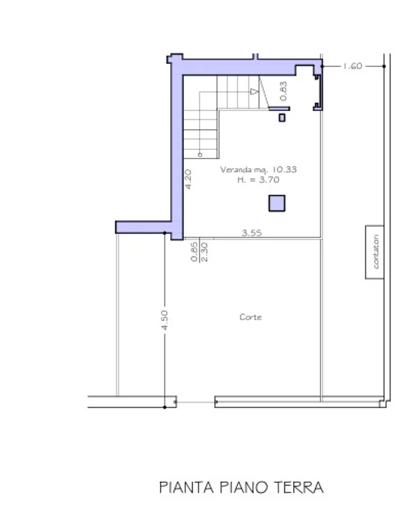
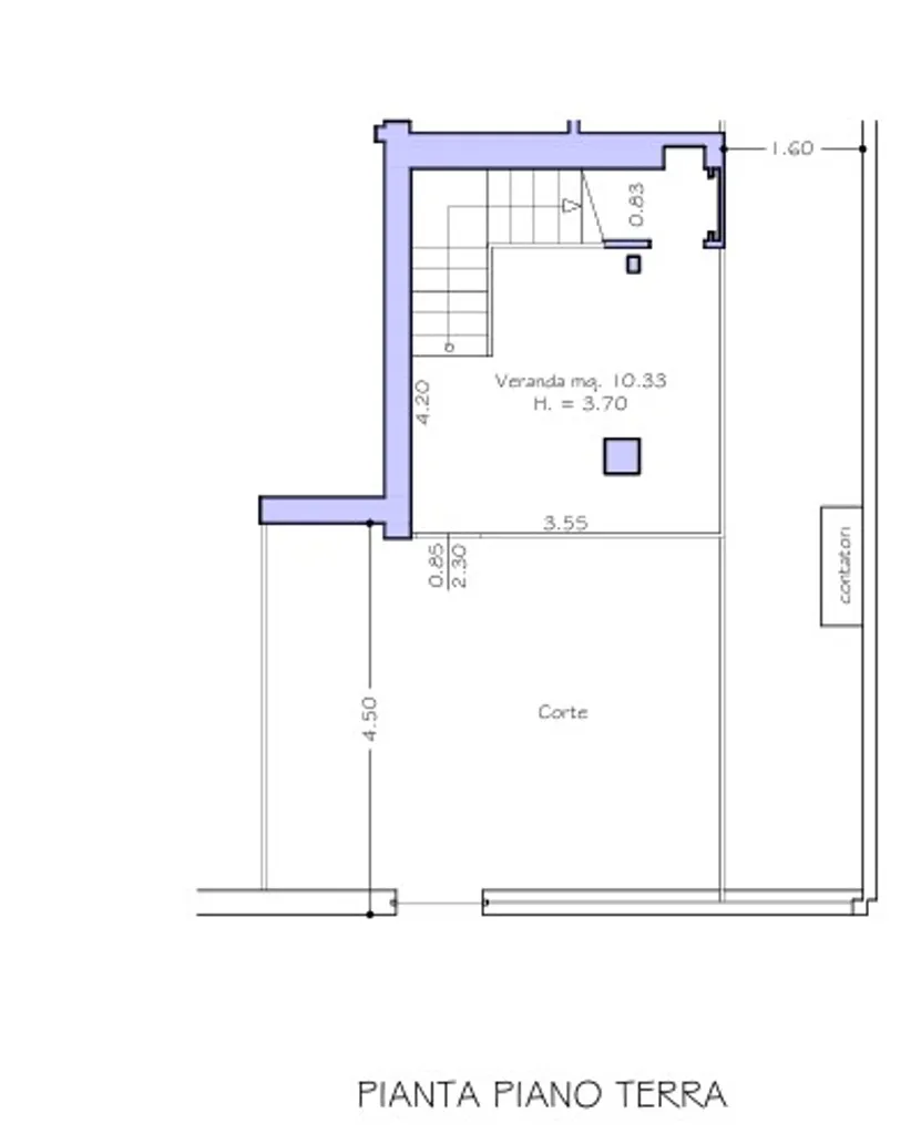
MARINA DI RAVENNA - IN CONTESTO DI 4 UNITA', SI VENDE APPARTAMENTO DA RISTRUTTURARE CON INGRESSO INDIPENDENTE E CORTE DI PROPRIETA' SUL FRONTE. AL P.T. INGRESSO DA VERANDA CONDONATA CON CANTINA. AL P.P. AMPIO INGRESSO, SOGGIORNO DI OLTRE 30 MQ, CUCINA ABITABILE, 4 LETTO, BAGNO. BALCONE PER TUTTA LA LUNGHEZZA DELL'APPARTAMENTO.  LIBERO SUBITO, CLASSE ENERGETICA IN CORSO.  POSSIBILITA' DI FRAZIONARE.  €. 249.000,00  TRATT.LI  DR1C10374

Planimetrie

Altre caratteristiche

Stato Immobile
Da sistemare
Anno costruzione
1970
Vani
5
Tipo di cucina
Abitabile
Balconi
1
Terrazze / Logge
1
Metratura giardino
25
Piano
Terra
Piani totali della palazzina
2
Ultimo piano
Condizionamento
Non presente
Ingresso indipendente
Cantina
Ripostiglio
Attico
Stato al rogito
Libero
Tipologia Immobile
Appartamento
Categoria Immobile
Case e Appartamenti
Contatta Agenzia
Proposto da: DIAMANTE CASA

Quotazioni immobiliari per Viale Zara - Marina di Ravenna - Ravenna