121 mq
3
1
Garage/Posto Auto
A pavimento
A4

Descrizione

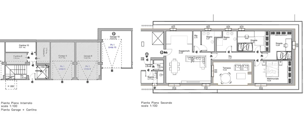
Rif. DR1C10421 -

RAVENNA - ZONA VICOLI -  ATTICO DI NUOVA COSTRUZIONE AL SECONDO E ULTIMO PIANO CON ASCENSORE, COMPOSTO DA GRANDE ZONA GIORNO CON CUCINA DI 45 MQ, 2 SINGOLE, 1 MATRIMONIALE, 2 BAGNI, TERRAZZO LOGGIATO DI 20 MQ, AL P. SOTTOSTRADA GARAGE DI 20 MQ E CANTINA DI 6 MQ, CLASSE ENERGETICA A4, RISCALDAMENTO E RAFFRESCAMENTO A PAVIMENTO, TERMO CAPPOTTO, ISOLAMENTO ACUSTICO, ANTISISMICA, POSSIBILITA' DI SCEGLIERE LE RIFINITURE E I MATERIALI  € 520 MILA

Altre caratteristiche

Stato Immobile
Nuovo
Anno costruzione
2024
Vani
7
Tipo di cucina
Aperta
Terrazze / Logge
1
Metratura totale terrazze / logge
18
Dettaglio garage
Singolo
Posto auto
Nessuno
Piano
2
Piani totali della palazzina
2
Ultimo piano
Condizionamento
Predisposto
Pannelli solari / fotovoltaico
Ingresso indipendente
Ascensore
Cantina
Ripostiglio
Attico
Stato al rogito
Libero
Tipologia Immobile
Appartamento
Categoria Immobile
Case e Appartamenti
Contatta Agenzia
Proposto da: DIAMANTE CASA

Quotazioni immobiliari per Ravenna