95 mq
2
2
Giardino privato
Arredato
G

Descrizione

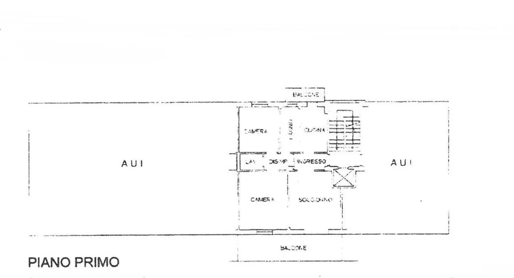
Rif. BRB206 - Vendiamo a Milano Marittima, a pochi passi dal mare, appartamento al primo piano servito da ascensore. L'immobile si sviluppa su un unico livello ed è composto da un ampio e luminoso soggiorno con accesso diretto al terrazzo abitabile e cucina separata dotata anch'essa di sfogo esterno. Dal disimpegno si accede alla zona notte, caratterizzata dalla camere da letto matrimoniale e la camera da letto doppia entrambe servite da un comodo bagno. É infine presente un secondo bagno. Completa la soluzione il garage di proprietà e il posto auto condominiale assegnato. Il condominio si presenta in buone condizione e la facciata esterna è stata ristrutturata di recente. Ottima soluzione ideale per chi cerca un investimento, vista la vicinanza al mare e al centro, ma anche per chi cerca un appoggio in cui passare le proprie vacanze.

Altre caratteristiche

Stato Immobile
In buone condizioni
Anno costruzione
1980
Vani
4
Tipo di cucina
Cucinotto
Balconi
1
Piano
1
Ascensore
Tipologia Immobile
Appartamento
Categoria Immobile
Case e Appartamenti
Contatta Agenzia
Proposto da: AGENZIA BARBIERI CERVIA

Quotazioni immobiliari per Enrico Toti 7 - Cervia