140 mq
3
2
Giardino privato
Autonomo
A1

Descrizione

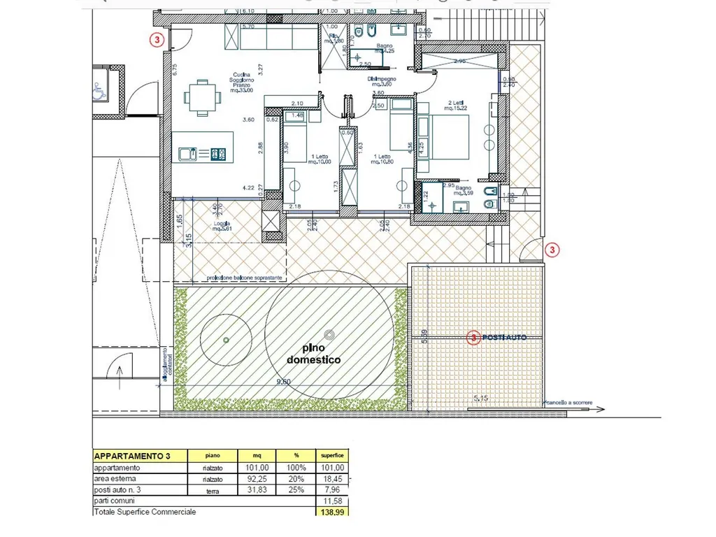
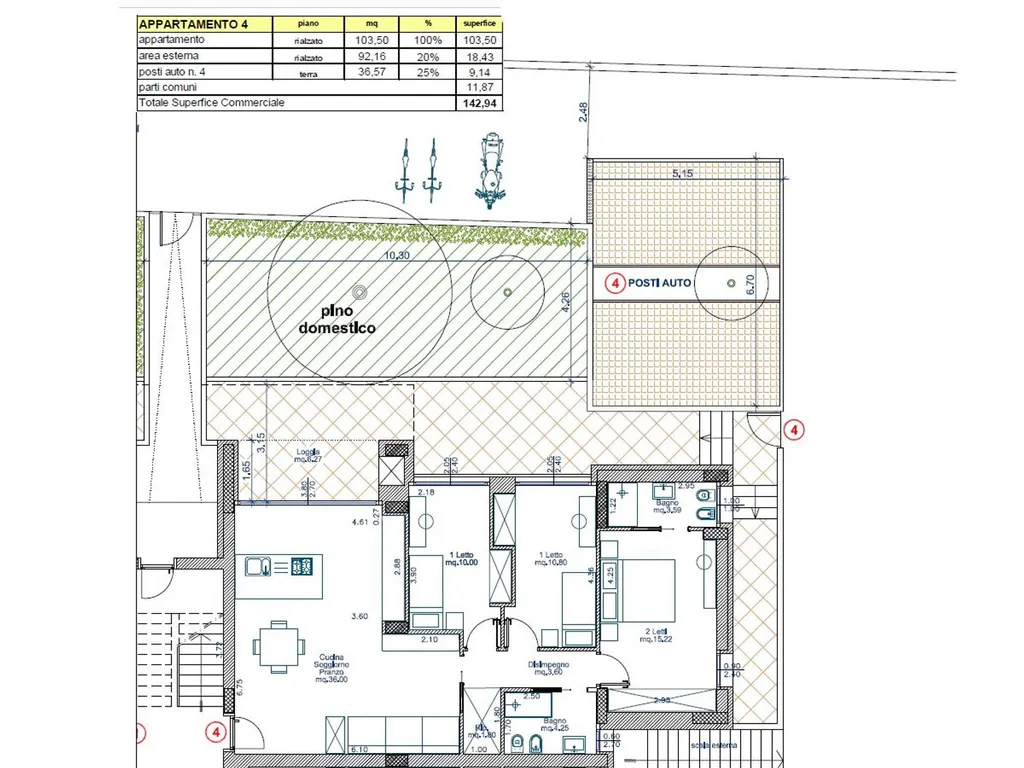
Rif. BRB617-PT - Vendiamo a Cervia, a pochi passi dal Lungomare e dal rinomato Bagno Fantini, appartamenti con tre camere da letto in palazzina di nuova realizzazione. Gli immobili, posti al piano terra, si compongono di ampia zona giorno con affaccio su giardino in parte loggiato, camera da letto matrimoniale con bagno privato, due ulteriori camere singole e bagno finestrato padronale. Gli appartamenti verranno realizzati in Classe A e saranno dotati di riscaldamento a pavimento. Possibilità di usufruire del parcheggio comune per biciclette e motocicli. Completano l'offerta due posti auto scoperti al piano terra. Rif. 617-PT.

Altre caratteristiche

Stato Immobile
In ottime condizioni
Anno costruzione
2024
Vani
4
Tipo di cucina
Angolo Cottura
Balconi
1
Terrazze / Logge
1
Piano
Terra
Piani totali della palazzina
4
Ascensore
Tipologia Immobile
Appartamento
Categoria Immobile
Case e Appartamenti
Contatta Agenzia
Proposto da: AGENZIA BARBIERI CERVIA

Quotazioni immobiliari per Urano - Cervia