150 mq
3
1
Garage/Posto Auto
Giardino privato
Autonomo
G

Descrizione

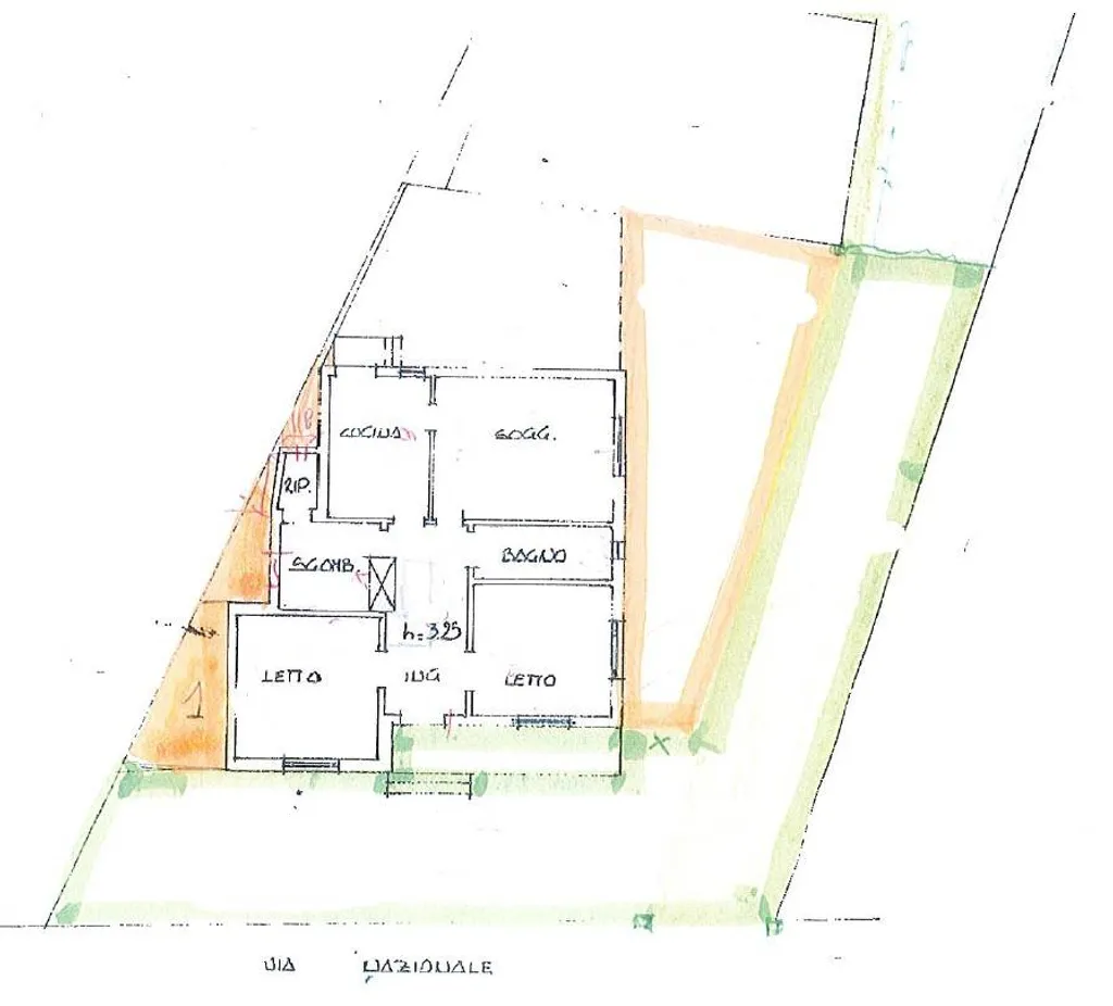
Rif. 3660 - Appartamento in bifamiliare con magazzino di proprietà in vendita a San Nicolò, Ferrara. L’immobile è situato al piano terra disposto su unico livello e dispone di: ingresso, ampia sala da pranzo e salotto comunicante con una grande cucina abitabile. 2 camere da letto di grandi dimensioni, uno studio eventualmente utilizzabile come terza camera singola, un ripostiglio. Bagno. Dalla cucina è possibile accedere ad un proprio scoperto privato oggi pavimentato e dotato di pergola, che accompagna a un grande magazzino o garage, attualmente accatastato come officina. Sul retro dello stabile anche una piccola corte. L’immobile si presenta in buone condizioni e volendo abitabile fin da subito, l’impianto termico è realizzato in rame e il riscaldamento è autonomo. Tetti di casa e officina appena rimaneggiati.. Riscaldamento autonomo, infissi in legno. Lo spazio interno che mette in comunicazione la cucina e il magazzino è di grande sfogo per la casa e facilmente trasformabile in una corte interna per pranzi e cene. Il magazzino può ospitare diverse automobili o essere utilizzato per il proprio lavoro o come deposito. L’immobile si trova al centro del paese in posizione strategica per raggiungere Ferrara, Argenta, Ravenna e Bologna. Potete prenotare una visita sul posto ho presso i nostri uffici per avere tutte le informazioni su questo appartamento in bifamiliare con magazzino di proprietà in vendita a San Nicolò, Ferrara. Cod. 3660 € 69.000

Altre caratteristiche

Stato Immobile
In ottime condizioni
Anno costruzione
1960
Vani
5
Tipo di cucina
Abitabile
Balconi
1
Terrazze / Logge
1
Piano
Terra
Tipologia Immobile
Appartamento
Categoria Immobile
Case e Appartamenti
Contatta Agenzia
Proposto da: Progetto Casa Ferrara

Quotazioni immobiliari per Via Nazionale - Argenta