95 mq
2
1
Garage/Posto Auto
Giardino privato
Arredato
Autonomo
In attesa di certificazione

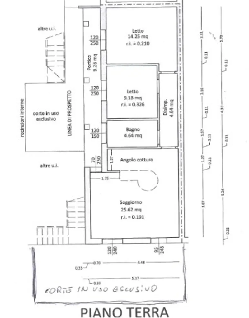
Descrizione

Rif. DR1C10314 -

ZONA POGGI - IN COMPLESSO DI POCHE UNITA' BEN TENUTO, BELL'APPARTAMENTO TUTTO AL P.T. FINEMENTE E TOTALMENTE RISTRUTTURATO, COMPOSTO DA : INGRESSO DA GIARDINO PRIVATO IN SOGGIORNO CON A/K, 2 LETTO, BAGNO. LE DUE LETTO SI AFFACCIANO A COMODA CORTE SUL RETRO . AL P.S. GARAGE.  LIBERO A BREVE, ARREDATO.  CLASSE ENERGETICA IN CORSO.   €. 295.000,00   DR1C10314

Planimetrie

Altre caratteristiche

Stato Immobile
Ristrutturato
Anno costruzione
1984
Anno ristrutturazione
2025
Vani
2
Tipo di cucina
Angolo Cottura
Dettaglio garage
Singolo
Metratura giardino
60
Piano
Terra
Piani totali della palazzina
3
Condizionamento
Installato
Spese condominiali
€ 40
Ingresso indipendente
Stato al rogito
Libero
Tipologia Immobile
Appartamento
Categoria Immobile
Case e Appartamenti
Contatta Agenzia
Proposto da: DIAMANTE CASA

Quotazioni immobiliari per Poggi - Ravenna