130 mq
3
2
Giardino privato
Autonomo
B

Descrizione

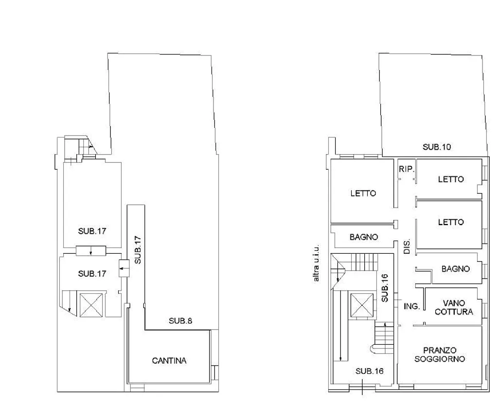
Rif. 3979 - Appartamento con posto auto esclusivo in elegante palazzina del centro storico della città. Adiacente la via Cosmè Tura, si affitta al piano rialzato servito da ascensore e in totale assenza di barriere architettoniche, splendido appartamento disposto su piano unico, arredato di sola cucina e più precisamente così composto: Ingresso, ampio salone d’angolo rivolto a sud, cucina abitabile separata e arredata, tre camere da letto, due bagni. Ampia cantina al piano seminterrato e deposito cicli comune. Riscaldamento autonomo, ascensore che accompagna dall' entrata al piano abitazione. A servizio dell’appartamento, un posto auto in autorimessa automatizzata con possibilità di affittarne un secondo. Potete contattarci senza impegno per ricevere maggiori informazioni o per prenotare un appuntamento per visionare questo appartamento con posto auto esclusivo in elegante palazzina del centro storico della città. Cod. 3979.€. 1.100 mensili con un posto auto.

Altre caratteristiche

Stato Immobile
Ristrutturato
Vani
4
Tipo di cucina
Abitabile
Balconi
1
Terrazze / Logge
1
Piano
Rialzato
Piani totali della palazzina
3
Condizionamento
Installato
Spese condominiali
€ 150 €/mese
Ascensore
Tipologia Immobile
Appartamento
Categoria Immobile
Case e Appartamenti
Contatta Agenzia
Proposto da: Progetto Casa Ferrara